Consultation has concluded
Project update: Council endorsed the refurbishment plans at its Ordinary Meeting on Tuesday 27 September 2022. The outcomes of the consultation were reported to Council, with feedback from the community showing overall support for the design. Construction is expected to commence in the 2024/25 Financial Year. Read the Community Consultation Report here.
How we consulted:
Randwick Council is seeking community feedback on plans to refurbish Malabar Memorial Hall and the entrance to Malabar Community Library.
Malabar Hall and Library are located next to each other on Anzac Parade in the Malabar town centre. The multipurpose hall has served the Malabar community since 1957, and last saw a facelift in 1970s with the addition of a foyer, and a rendered façade hiding the original brickwork of the building.
While the building is functional, the ramp doesn't meet current BCA guidelines, there is no public toilet within the library, and the hall is in need of updating to better meet the needs of the community and those who hire it.
Image: Current Malabar Memorial Hall and Community Library entrance
What we're planning
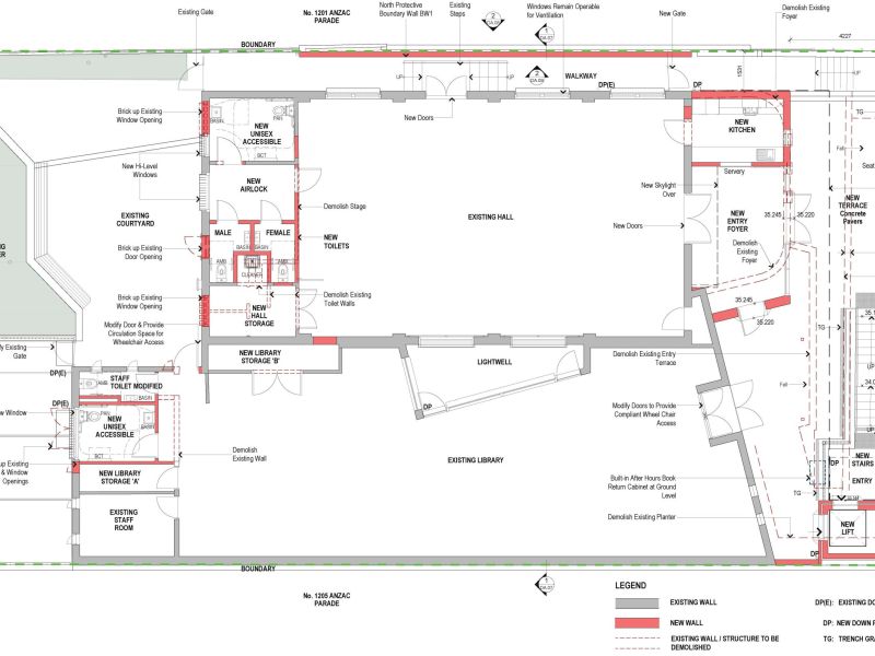
Council is planning to demolish the 1970s foyer, ramp, and façade addition to create a new entrance to the hall and library with a lift and stairs and an outdoor terrace area for the hall overlooking Anzac Parade. The original 1950s brickwork of the original hall will be exposed and able to be seen from within the new entrance to the hall.

Image: Artists impression of the proposed refurbishment

Image: Artists impression - Bird's eye view of the proposed refurbishment
Project highlights
- A new lift and stairs to access the library and hall from Anzac Parade
- The hall will be extended closer to the road providing space for a new kitchen and servery, outdoor terrace and new entry foyer
- Library patrons will benefit from a dedicated unisex toilet to be built within the library (previously patrons had to use the public toilets across the road)
- The original 1950s brickwork on the hall will be exposed creating an appealing entrance to the hall
- New finishings, lighting and improved ventilation throughout the hall
- An updated kitchen with an indoor and outdoor serving area
- Male, female and an accessible toilet to be upgraded within the hall
We want to know what you think of the plans!
To have your say please consider lodging a submission below.

Consultation period: 29 April to 5pm 27 May 2022.
This project has been funded from Randwick City Council's 'Our Community Our Future' program.
Make a submission
CLOSED: Submissions have closed.
Malabar Memorial Hall Upgrade Concept Design.
21 responses
Let us know your comments about the Malabar Memorial Hall upgrade concept design.
YOUR PRIVACY: Your privacy is important to us. We will use your personal information for the purpose of communicating with you about this project. We may use and make public extracts from any comments that you make, however, we will not include any personal or identifying information.
Consultation has concluded